萃取塔加料流量调节系统振荡
2022-09-30 科威
锅炉液位波动异常及锅炉常见问题分享
2022-09-29 科威
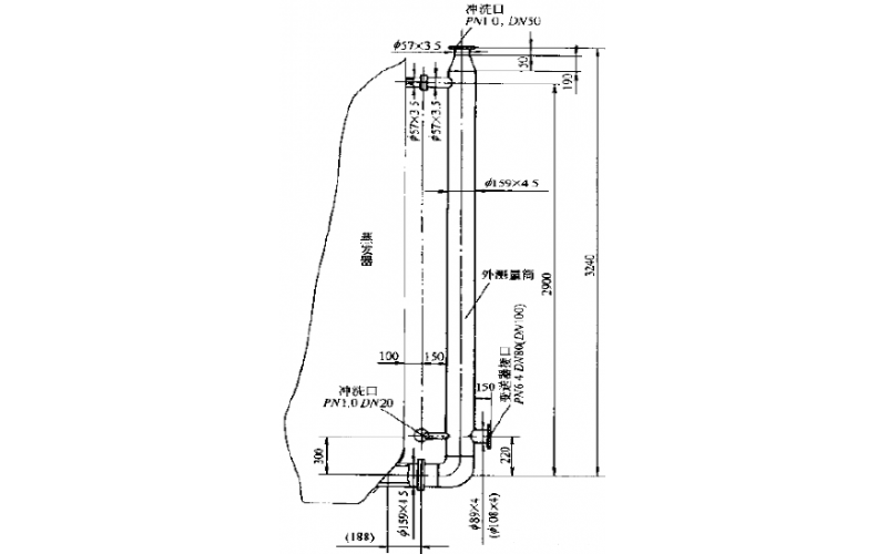
烧碱蒸发器WAX-C320法兰差压变送器液位测量的改进
减压塔塔底液位控制的改进
液氨WAX-C320法兰差压变送器液位指示值偏低
2022-09-28 科威
锅炉汽包液位波动原因分析
KWZK-DJ800电极式水位计显示仪表少数指示灯常亮
铜洗塔JKN-200浮筒液位变送器测量值信号不变化